21706 Drochtersen – Kapitänshaus, Ästhetik und Harmonie, Tradition und Moderne in Elbnähe
Eckdaten
- Art Einfamilienhaus
- Lage 21706 Drochtersen
- Kaufpreis 259.000,00 €
- Wohnfläche ca. 144 m²
- Grundstück ca. 677 m²
- Zimmer 6
- Gartenfläche ca. 500 m²
- Kellerfläche ca. 70 m²
- Baujahr 1905
- Nutzfläche ca. 30 m²
- Etagenzahl 2
- Denkmalschutzobjekt nein
- Heizungsart Öl-Heizung
- Einbauküche ja
- Stellplatztyp Garage, Aussenstellplatz
- Stellplatzanzahl 3
- Garagenanzahl 1
- Vermietet nein
- Bezugstermin sofort
- Fahrzeit Hauptbahnhof 20 min
- Fahrzeit nächste Autobahnauffahrt 15 min
- Fahrzeit nächster Flughafen 75 min
- Bodenbelag Fliesen, Laminat
- Ausstattung des Bades Badewanne, Dusche, Fenster
- Zustand Gepflegt
- Immobilien-ID 400
- Provision 3,57% inkl. MwSt.
Inhaberin
Immobilie
Die sogenannten Kapitänshäuser sind eng verbunden mit der maritimen Geschichte Norddeutschlands.
Als Ruhe- und Erholungsort zwischen langen und oft gefährlichen Seereisen, legten sie vor allem auch Zeugnis ab über die gesellschaftliche Stellung und das Ansehen.
Architektur, Design und die Auswahl der Materialien waren ein Statement und die Symbolkraft eines
Kapitänshauses ist bis heute erhalten geblieben. Nach wie vor repräsentiert es einen Wohnstil, der Komfort, Eleganz und die Verbindung zum maritimen Leben widerspiegelt.
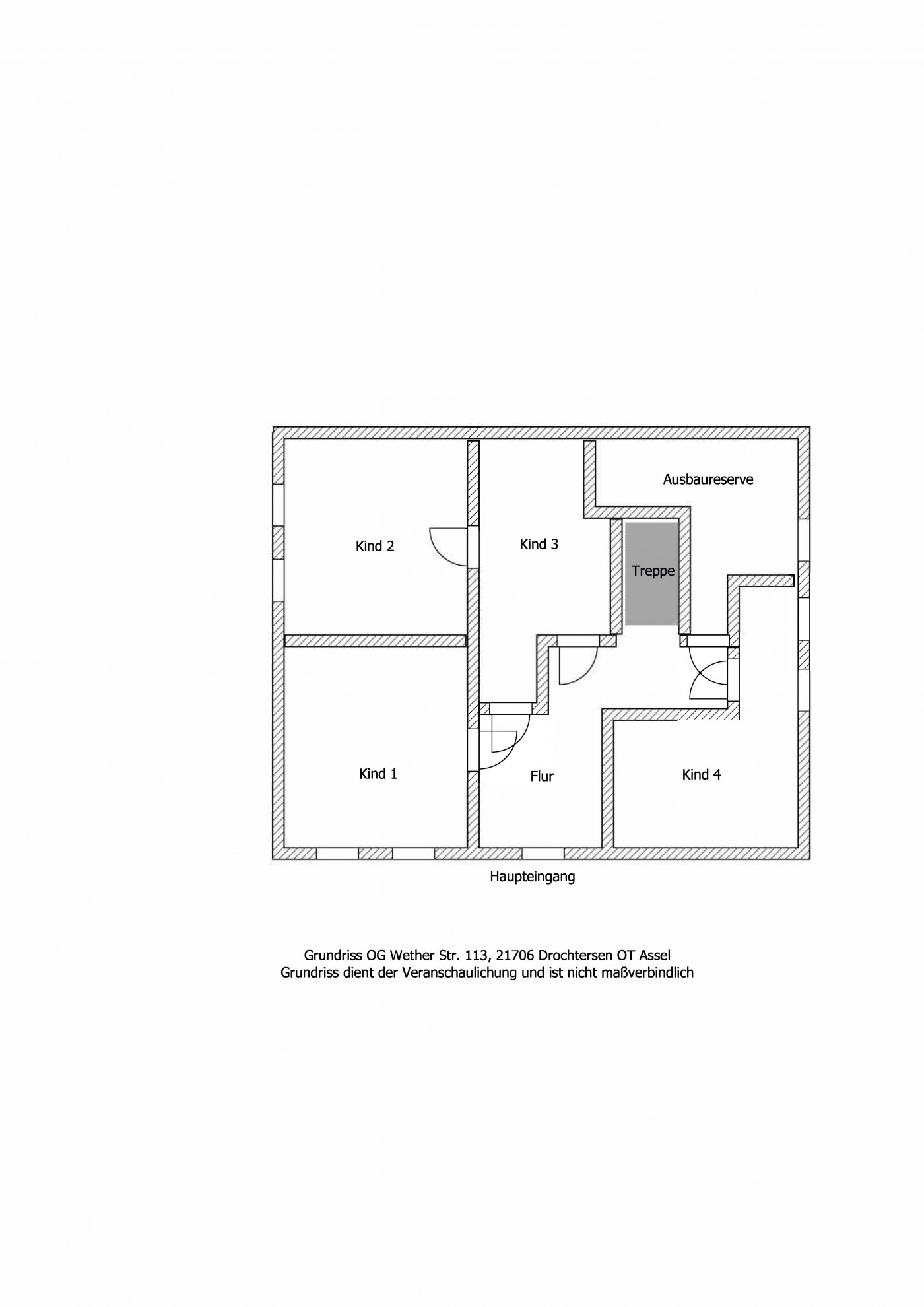
Dieses Haus verkörpert seit 1905 markante Architektur mit traditioneller Handwerkskunst. Die zweistöckige Bauweise garantiert viel Wohnraum. Die steile Dachneigung macht diesen auch im Obergeschoss gut nutzbar.
Das Erdgeschoss ist geprägt vom geräumigen Eingangsbereich, der ein Schlaf- oder Arbeitszimmer, den Wohn- und Essbereich, sowie die Küche um sich vereint. Das modernisierte Bad ergänzt das Raumangebot. Das Obergeschoss bietet, sehr typisch für diesen Haustyp, 4 weitere Schlaf-, Spiel- oder Arbeitszimmer. Hier bestünde die Möglichkeit, durch Installation eines zusätzlichen Bades für weiteren Komfort zu sorgen. Das Dachgeschoss bietet Stehhöhe und je nach Investitionsvolumen ließe es sich, z.B. durch Öffnung der Decke, mit dem Obergeschoss verbinden, um beispielsweise eine offene Galerie zu schaffen.
Lage
Drochtersen-Assel liegt im südlichen Teil Kehdingens, ca 15km westlich der Hansestadt Stade am südlichen Elbufer. Über den Obstmarschenweg erreicht man Drochtersen mit dem Auto in ca 5 Min. Hier findet man umfangreiche Einkaufsmöglichkeiten, diverse Schulformen, Ärzte, Banken u.v.a.m. In weiteren knapp 10 Min ist man auf der Elbinsel Krautsand angelangt und auch zur Elbfähre nach Wischhafen sind es nur ca 20 Autominuten. Stade ist in ca 20 Min zu erreichen. Hier gibt es Anschluss an die A26 nach Hamburg und an den Verkehrsverbund HVV mit S-Bahn-Verbindung nach Hamburg. Die südlich der Elbmarschen gelegenen Moorlandschaften laden zu ausgedehnten Spaziergängen und Fahrradtouren ein, auf den Deichen entlang der Elbe schnuppert man die frische Luft der großen weiten Welt und bestaunt Containerriesen auf ihrem Weg von bzw nach Hamburg.
Ausstattung
– Kunststofffenster mit Isolierverglasung
– Viessmann Brennwertheizung
– Einbauküche
– verbundener Wohn- und Essbereich
– modernisiertes Bad mit Wanne und Dusche
– Vollkeller
– separater Ausgang vom EG in den Garten
– Gartenlaube und externer Party- oder Gästebereich
– Abstellfläche für Gartengeräte
– Garage mit Rolltor
– gepflasterte Hoffläche
Energieausweisangaben
- Enerigeausweistyp Bedarfsausweis
- Energiekennwert 156 KWh(m²*a)
- Energieeffizienzklasse E
- Energie mit Warmwasser ja
- Energieausweis erstellt am 17.09.2025
- Energieausweis gültig bis 16.09.2035
- Heizungsart Öl-Heizung
- Befeuerung / Energieträger Öl
Weitere Informationen
Herzlichen Dank für Ihre Anfrage.
Wir werden diese so schnell wie möglich bearbeiten.











